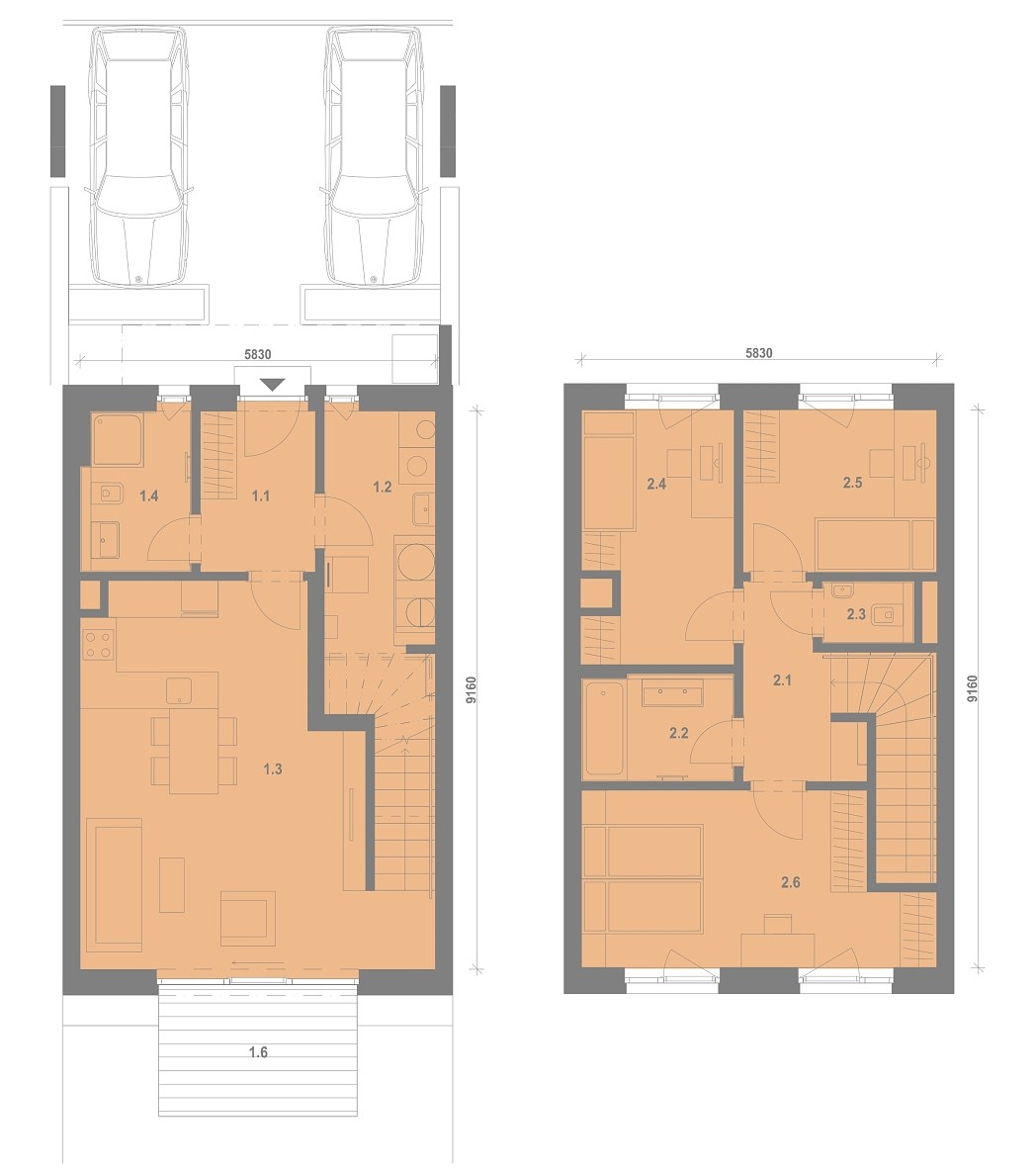
Rodinný domek RD16 - detailní informace
Objekt:
RD
Podlaží:
C
Číslo:
RD16
Dispozice:
4+kk
Orientace:
V,Z
Plocha RD:
101,8 m2
Parkovací stání:
2
Zastavěná plocha:
108,4 m2
Cena celkem vč. DPH:
15 271 000 Kč

800 186 186
800 186 186
Půdorys RD16