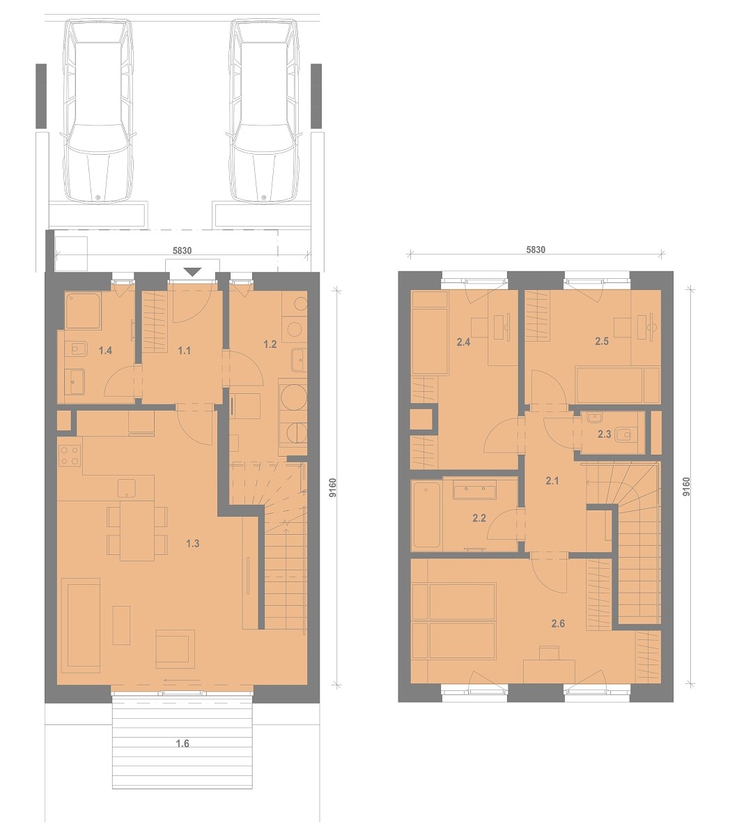
Rodinný domek RD23 - detailní informace
Objekt:
RD
Podlaží:
D
Číslo:
RD23
Dispozice:
4+kk
Orientace:
V,Z
Plocha RD:
101,8 m2
Parkovací stání:
2
Zastavěná plocha:
108 m2
Cena celkem vč. DPH:
14 639 000 Kč

800 186 186
800 186 186
Půdorys RD23