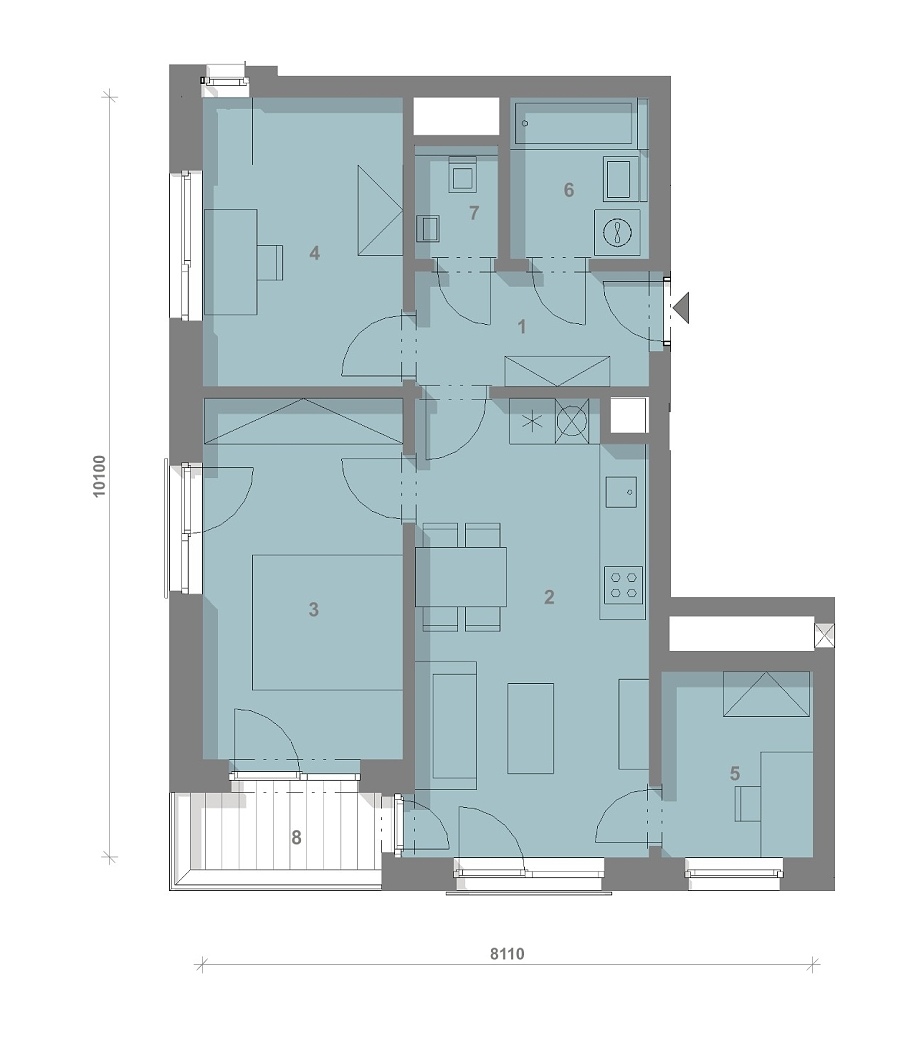
Byt O-601 - detailní informace
Objekt:
O
Podlaží:
6.NP
Číslo:
O-601
Dispozice:
3+kk (4+kk)
Orientace:
V, J, Z,
Plocha bytu*:
67,5 m2
Plocha terasy:
3,01 m2
Plocha sklepa:
5,19 m2
Cena celkem vč. DPH:
9 342 000 Kč

800 186 186
800 186 186
Půdorys O-601