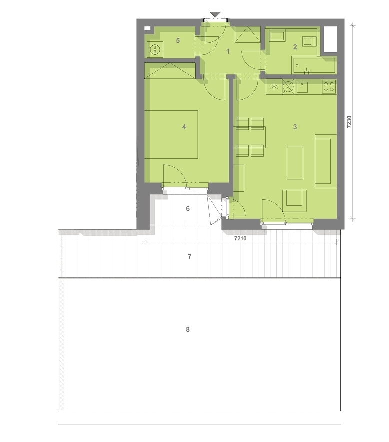
Byt R-104 - detailní informace
Objekt:
R
Podlaží:
1.NP
Číslo:
R-104
Dispozice:
2+kk
Orientace:
Z, S
Plocha bytu*:
51 m2
Plocha lodžie:
3,44 m2
Plocha terasy:
69,08 m2
Plocha sklepa:
2,83 m2
Cena celkem vč. DPH:
7 558 000 Kč

800 186 186
800 186 186
Půdorys R-104