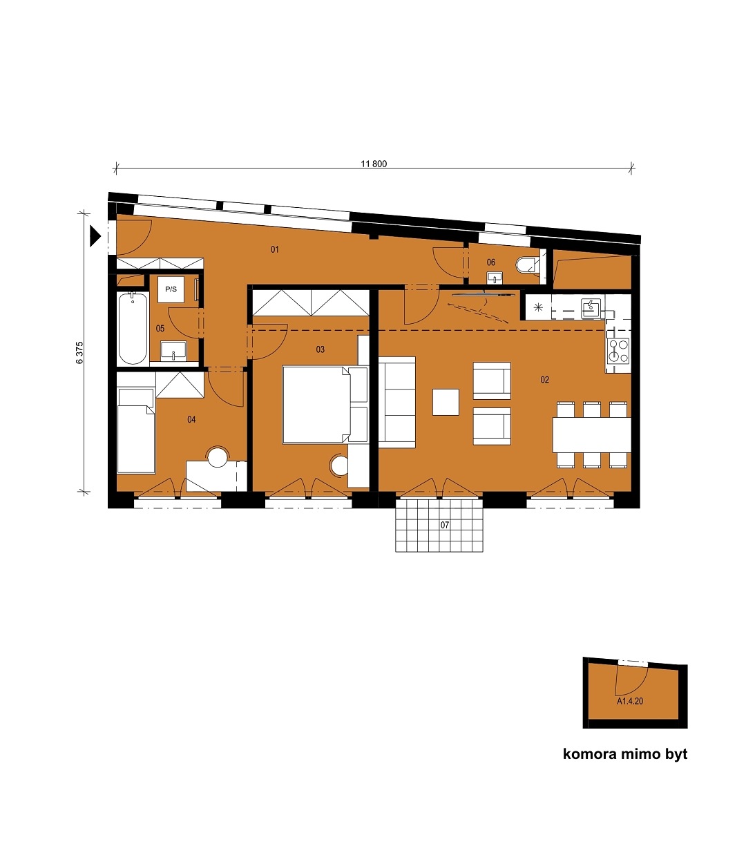
Byt A1.4 - detailní informace
Objekt:
A
Podlaží:
1.NP
Číslo:
A1.4
Dispozice:
3+kk
Orientace:
J
Plocha bytu*:
72,7 m2
Plocha terasy:
2,3 m2
Plocha komory:
2,6 m2
Půdorys ke stažení

800 186 186
800 186 186
Půdorys A1.4