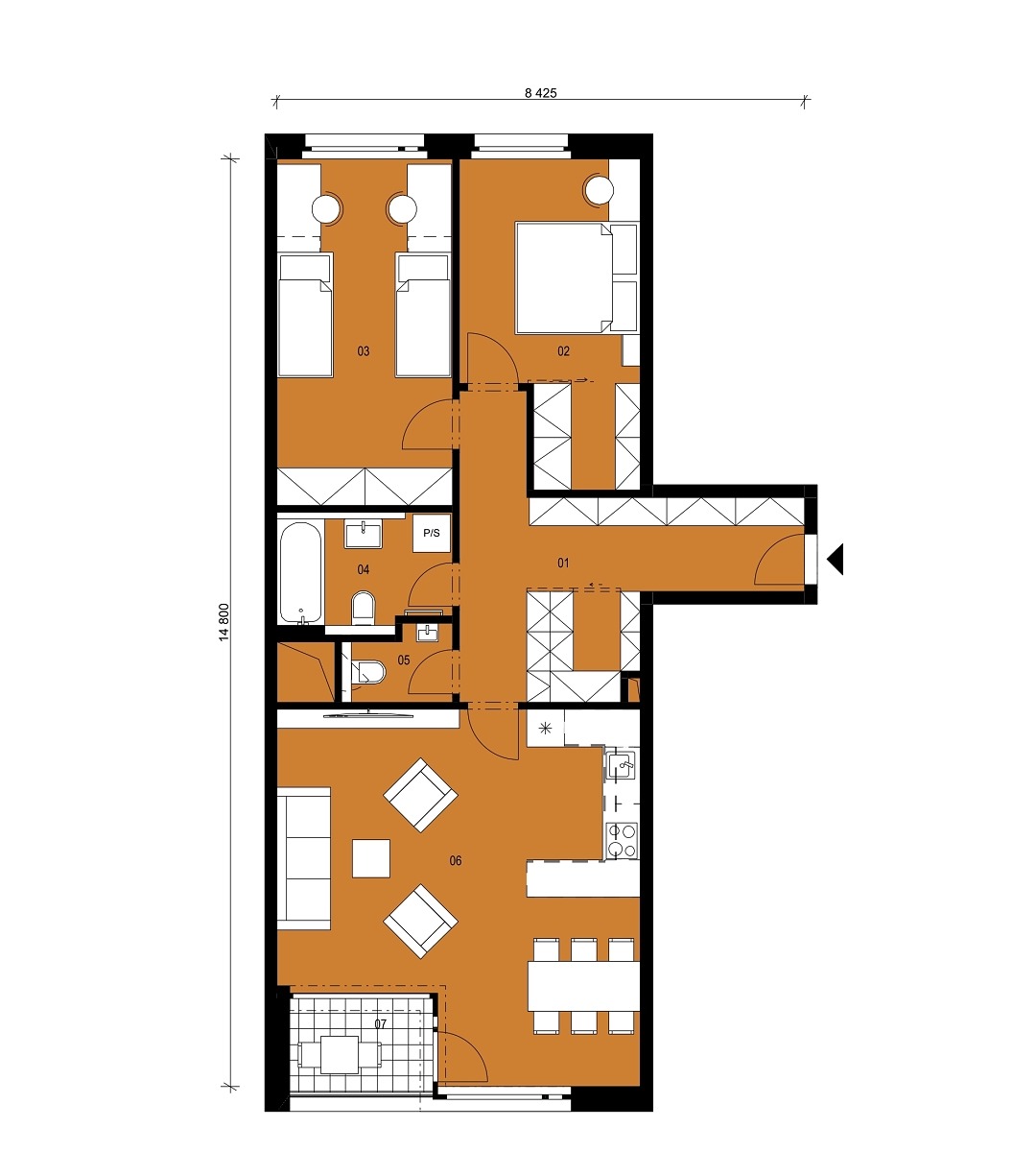
Byt D4.2 - detailní informace
Objekt:
D
Podlaží:
4.NP
Číslo:
D4.2
Dispozice:
3+kk
Orientace:
S, J
Plocha bytu*:
87,1 m2
Plocha lodžie:
3 m2
Plocha sklepa:
1,5 m2
Cena celkem vč. DPH:
13 981 000 Kč

800 186 186
800 186 186
Půdorys D4.2