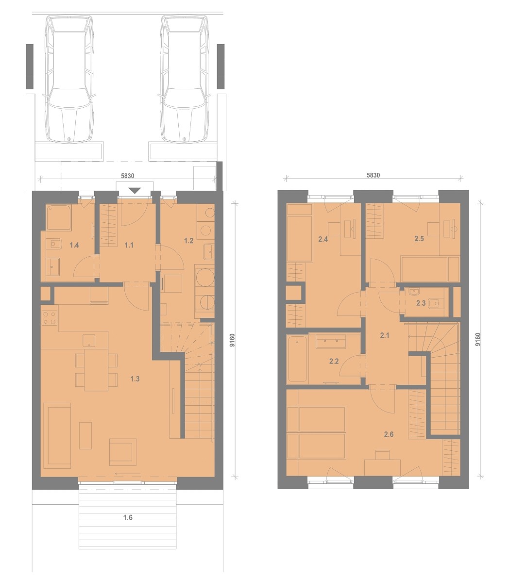
Family house RD14 - more information
Object:
RD
Storey:
C
No.:
RD14
Arrangement:
4+kk
Orientation:
V,Z
House area:
101.8 m2
Parking stall:
2
Built-up area:
108.4 m2
Download floor projection

800 186 186
800 186 186
RD14 floor plan