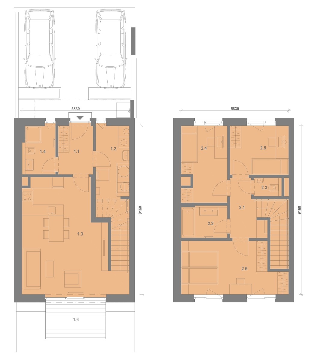
Family house RD18 - more information
Object:
RD
Storey:
C
No.:
RD18
Arrangement:
4+kk
Orientation:
V,Z
House area:
101.8 m2
Parking stall:
2
Built-up area:
110.7 m2
Total price incl. VAT:
15 322 000 CZK

800 186 186
800 186 186
RD18 floor plan